Bauherr: Die Johanniter; Mitarbeit: LP2 über Büro ARC
Der Browser unterstützt keine Inlineframes oder ist aktuell so konfiguriert, dass Inlineframes nicht angezeigt werden.
<<
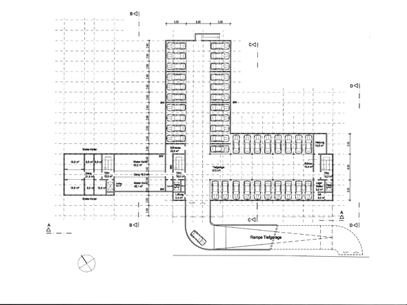
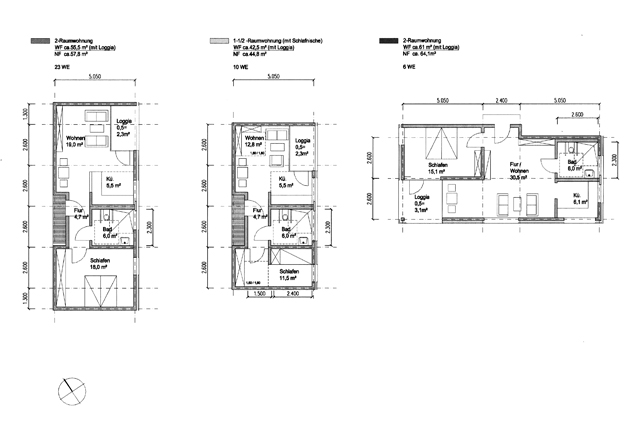
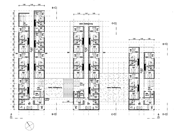
Studie / Entwurf: Neubau Soziales Zentrum, Wilkau / Haßlau